【摘要】為實現爐缸侵蝕自動預警及預警記錄查詢,設計在高爐爐缸爐底增設熱電偶在線監測系統。從熱電偶點位設置、性能要求以及測溫采集系統網絡架構原理及布置進行介紹,設計一套爐缸爐底侵蝕在線監測預警系統。
1 前言
柳鋼5# 高爐自開爐以來已生產了接近10 年,經過摸底排查,爐缸爐底測溫熱電偶損壞點數已達到50%,爐缸爐底熱電偶監控系統處于半失效狀態,爐缸爐底侵蝕檢測狀況無法及時顯示和報警,存在安全隱患。從節約投資及保證高爐后期安全運行角度出發,為了實現爐底爐缸異常侵蝕、碳磚環裂、氣隙等異常情況的自動預警及預警記錄查詢。需要在5# 爐增設爐缸爐底侵蝕在線監測預警系統。
“爐缸爐底侵蝕在線監測預警系統”可對高爐爐底爐缸耐材侵蝕情況進行在線監測和自動預警,指導高爐工作者及時掌握爐缸侵蝕狀態并采取護爐措施,延緩爐缸侵蝕速度,預防爐缸燒穿事故,防患于未然,幫助高爐工作者實現高爐的安全長壽。
在不發生不可抗力(渣鐵燒蝕、人為破壞、安全事故、自然災害、戰爭等非產品質量和防護原因)和正常維檢的情況下,保證一代爐役內90%以上的熱電偶正常運行。定期采集各測溫點的溫度數據,進行濾波(濾除異常數據),并建立數據庫。用圖形化界面顯示各測溫點的物理位置(標高、角度、插入深度)、當前溫度和趨勢曲線。
2 爐底爐缸熱電偶點位設置
依據5# 爐底爐缸耐材砌筑結構,根據侵蝕模型的需要進行合理的測溫點設計,安裝優質爐缸專用熱電偶,并進行科學合理的安裝、引出、防護和組網,建立穩定、可靠的爐底爐缸耐材溫度自動監測系統。
2.1 爐底爐缸熱電偶點位分布
在5# 爐缸爐底碳磚刻槽預埋熱電偶監測點,主要對爐缸鐵口區域“象腳”侵蝕區增加熱電偶監控,措施如下:
爐缸底部第0 層增加熱電偶1 點,爐缸底部第1 層增加熱電偶12 點,爐缸底部第2 層增加熱電偶32 點,爐缸底部第3 層增加熱電偶32 點,爐缸底部第4 層增加熱電偶42 點,爐缸底部第5 層增加熱電偶42 點,爐缸底部第6 層增加熱電偶30 點,爐缸側壁第7 層增加熱電偶30 點,爐缸側壁第8 層增加熱電偶30 點,爐缸側壁第9 層增加熱電偶30 點,爐缸側壁第10 層增加熱電偶2 點,爐缸側壁第11 層增加熱電偶5 點,爐缸側壁第12 層增加熱電偶5 點,增加熱電偶測溫293 點。爐底爐缸熱電偶點位分布如表1 所示。

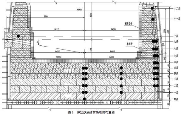
2.2 爐缸爐底測溫熱電偶布置
根據工藝專業提供的高爐設計圖和高爐爐缸爐底耐材熱電偶布置要求,依據冶金傳輸原理、爐缸爐底侵蝕模型和熱電偶優化布置理論,“象腳狀”侵蝕區域加大監測密度、爐底電偶交錯布置、節約熱電偶投資的原則,爐缸爐底耐材熱電偶布置如圖1 所示。

3 在線監測系統設計
3.1 熱電偶性能參數
眾所周知,在高爐建成后爐底爐缸耐材內的熱電偶是無法更換的,因此熱電偶質量非常重要,高爐爐缸爐底熱電偶應選擇專門針對高爐爐缸爐底環境開發的具有耐高溫、耐腐蝕、抗還原、抗氧化、抗滲碳特性的高爐爐缸專用熱電偶,以保證多數熱電偶在一代爐役內長期正常工作。
高爐爐缸專用熱電偶是專門針對高爐爐缸爐底復雜的工況環境設計的優質鎧裝柔性熱電偶,在不發生渣水、鐵水直接侵蝕、墜物或其他不可抗力破壞的情況下,可以保證一代爐役內90%以上的熱電偶能夠長期穩定工作。嚴格執行的國家標準:《鎧裝熱電偶電纜及鎧裝熱電偶》(GB/T 18404- 2001)。熱電偶性能參數如表2 所示。

3.2 采集系統網絡架構
本系統由高爐爐缸專用熱電偶、補償導線、采集模塊、多路串口服務器、網絡交換機、工控機、數學模型組成。首先,在砌筑爐缸爐底耐材時,在耐材內預埋熱電偶,組建爐缸爐底耐材溫度采集系統,然后,根據高爐設計結構、爐缸爐底砌筑圖、耐材參數等開發高爐爐缸爐底溫度場分布、三維侵蝕內型、渣鐵殼厚度、爐缸活躍性在線監測診斷模型。
爐缸爐底耐材溫度采集系統的網絡架構如圖2所示。

3.3 采集系統布置
在5# 高爐爐缸爐底耐材內埋置熱電偶,并相應增加熱電偶引出時的密封裝置,增加信息處理模塊等自動化設備。爐缸爐底耐材內溫度檢測點共計293 個,20 個氣密引出裝置,10 面采集箱,1 面配電集線箱等。將熱電偶通過補償導線連接到熱電偶采集模塊,并與多路串口服務器、工控機形成熱電偶溫度采集系統。在采集箱后面、橋架上方靠近潛在熱源處用厚度為3 mm 的鋼板制作檔熱板進行隔熱防護。采集系統布置如圖3 所示。

系統設計采用爐缸爐底三維侵蝕內型、渣鐵殼變化和活躍性在線智能監測診斷監測系統。該系統通過采集高爐爐缸爐底耐材的溫度,計算爐缸爐底溫度場分布,實時在線顯示和智能預警,能夠實現對高爐爐缸爐底三維侵蝕內型、渣鐵殼變化和活躍性在線智能監測、診斷、數據存儲、顯示和預警。
4 應用效果
柳鋼煉鐵廠5# 高爐爐缸爐底侵蝕檢測報警系統包括:爐缸爐底溫度場數字化檢測,爐缸爐底耐材熱電偶檢測數據的自動采集、存儲和顯示,不同縱剖面溫度場、等溫線、溫度云圖、殘襯厚度的自動計算、繪制、存儲、顯示和歷史查詢,爐缸爐底任意一點的坐標、溫度及材質隨光標的自動顯示,爐缸異常侵蝕、耐材厚度過薄、爐缸結厚等異常情況的自動預警和預警查詢功能等多個在線檢測模塊。通過該系統的建立,可實現對爐缸爐底侵蝕實時判定,能夠幫助高爐操作人員及時準確地掌握爐缸異常侵蝕、耐材厚度過薄、爐缸結厚等情況,進而采取有針對性的行之有效的生產操作調節,控制冶煉強度,最終為實現高爐的長壽、高效、優質、低耗及清潔生產奠定基礎。